Tuesday, September 18, 2012
Wednesday, September 12, 2012
ANALYSIS
Vakko Fashion Center by REX Architecture
Circulation - may either be horizontal or vertical differentiating and explaining the way people may transgress throughout the building.
Compliments/Courtesy www.rex-ny.com
Compliments/Courtesy www.rex-ny.com
Uses - public and private uses of the building differentiated by colors.

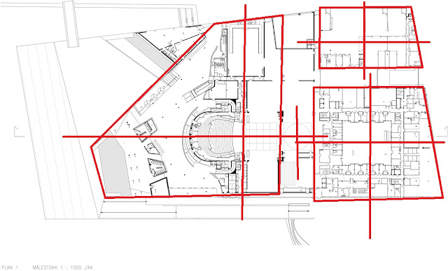
OSLO OPERA HOUSE by SNOHETTA
"Assignment Hierarchy - Differences among forms and spaces, importance of forms and spaces and the functional, formaland symbolic roles they play in organization"
"USES - Showing difference between private and public"
"Circulation - Showing entrances, vertical circulation and main circulation throughout the floor plans"
NEW WORLD CENTER BY FRANK GEHRY
USERS
CIRCULATION
Subscribe to:
Comments (Atom)
























